Ein flexibles Wohnkonzept
Viktoria Herker 2017
Interior Architecture Masterthesis
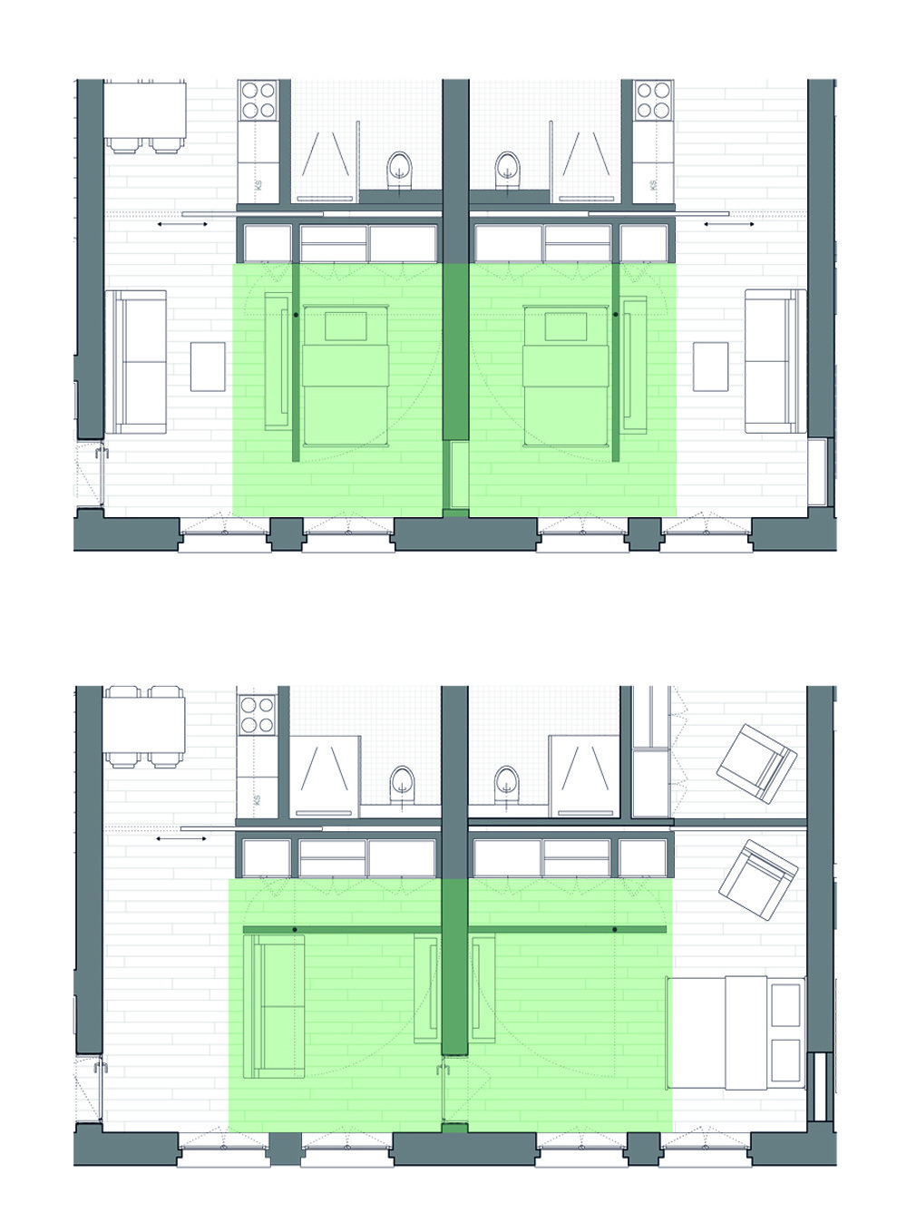
Die Wahlmöglichkeit zwischen Nähe und Distanz, gemeinsamen Aktivitäten, gegenseitiger Unterstützung und Integration sind wichtige Faktoren des integrierten Wohnens. So generieren sich vom öffentlichen Hof, der von der Straße aus frei zugänglich ist, über das Café und das Atrium, als Mischfläche zwischen Hausbewohnern und Besuchern, bis hin zum privaten Gemeinschaftsbereich für die Bewohner, drei unterschiedliche Bereiche für einen ganz persönlichen Umgang mit Nähe und Distanz in der Gemeinschaft.































