Masterthesis Interior Architecture SoSe 2025

Masterthesis Interior Architecture SoSe 2025
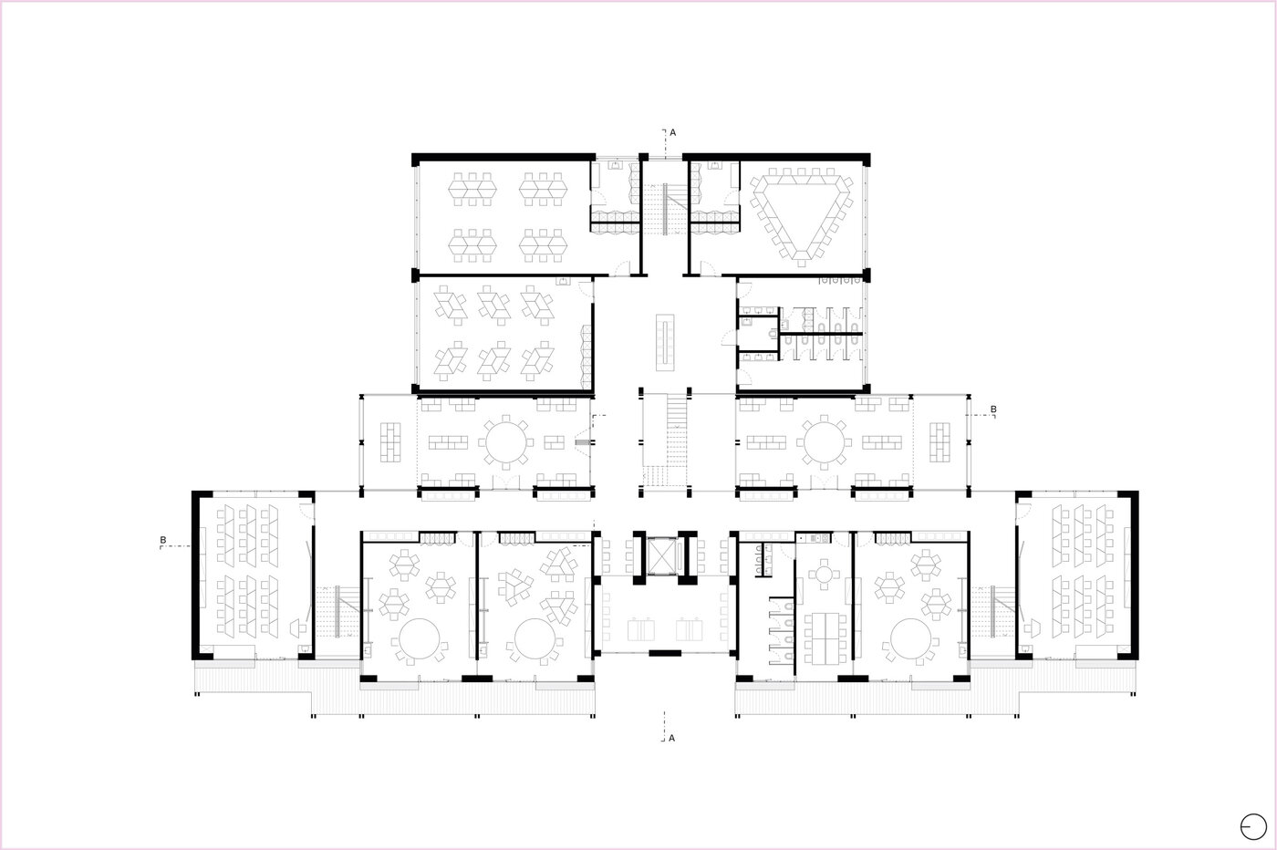
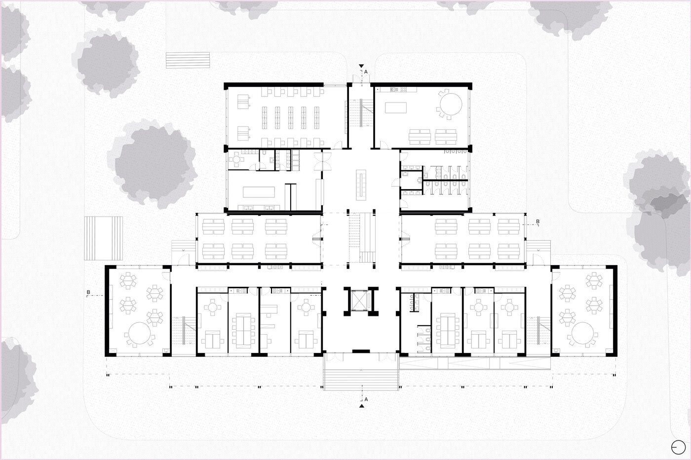
Lernplatte
vom Typenbau zur Lernlandschaft
Der Schulbau befindet sich im Wandel. Neue Lern- und Nutzungsszenarien prägen zunehmend das Bild zeitgemäßer Bildungseinrichtungen. Schule ist längst mehr als ein Ort der Wissensvermittlung, sie ist Lebensraum, Begegnungsort und Wegbereiterin gesellschaftlicher Entwicklung. Funktional starre Raumkonzepte, wie sie in den klassischen Flurschulen des 20. Jahrhunderts üblich waren, sind heute nicht mehr zukunftsfähig. Sie folgen einem überholten Verständnis von Unterricht als linearer Wissensvermittlung in abgeschlossenen Klassenzimmern. Solche Schulen wurden als DDR Typenbauschulen in Plattenbauweise errichtet. Der Schultyp Erfurt ist ein exemplarisches Beispiel, der in Potsdam und Umgebung vielfach realisiert wurde. Heute weist dieser Typenbau erhebliche konstruktive und qualitative Mängel auf, aber die klare Tragstruktur und die modularen Elemente eröffnen Chancen für Umnutzungen, Erweiterungen und kreative Sanierungskonzepte. Statt eines Abrisses wird der Plattenbau des Typs Erfurt erhalten und als tragende Struktur weitergenutzt. Die alte Fassade wird durch ein neues Fassadensystem ersetzt. Die Flurflächen werden erweitert und großzügiger gestaltet. Ergänzt wird der Klassentrakt durch einen Laubengang zur Stadtseite, der neue Wege und Begegnungen eröffnet. Ein Neubau ersetzt den alten Verbindungstrakt und schafft Raum für Mensa und zeitgemäße Lern- und Aufenthaltsbereiche. Aus dem Dialog zwischen Alt und Neu, zwischen geschlossener Betonplattenkonstruktion und sichtbarem Holzskelett, entsteht durch gezielte Transformation eine offene und inspirierende Lernlandschaft.



























Die Arbeit von Leonora Schlüter wurde am 12.11.2025 mit dem GiebichenStein des Freundes- und Förderkreis der Hochschule und dem Preis der Kunststifung des Landes Sachsen-Anhalt ausgezeichnet.
Die Ausstellung zu den GiebichenStein Designpreisen ist noch bis zum 4.1.2026 zu sehen.